Tensione nominale: 10 kV/35 kV
Frequenza nominale: 50\60 Hz
Scenari applicativi: i prodotti sono ampiamente utilizzati in sistemi di alimentazione, industria chimica, metallurgia, miniere di carbone, ferrovie elettrificate e altre occasioni speciali.
Reattore in serie ad alta tensione con nucleo di ferro a secco con filtro armonico
Applicazione del prodotto: reattore in serie a nucleo di ferro a secco serie CKSC
La nostra azienda è in grado di produrre reattori in serie a nucleo di ferro a secco serie CKSC con livelli di tensione pari o inferiori a 35 kV e capacità pari o inferiori a 2000 kVar.
Il reattore in serie è collegato in serie con il banco di condensatori ad alta tensione e collegato al sistema di alimentazione da 6 a 35 kV per limitare la corrente di spunto del banco di condensatori parallelo e sopprimere le armoniche della rete elettrica.
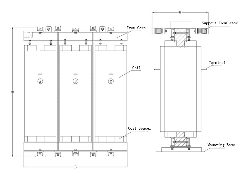
Struttura del reattore in serie a nucleo di ferro a secco
Il reattore in serie a nucleo di ferro ha due strutture principali: il nucleo di ferro e la bobina.
Il nucleo del reattore in serie con nucleo in ferro a secco è una struttura a tre colonne. La colonna del nucleo è composta da dischi a gradini o radiali, mentre i gioghi in ferro superiore e inferiore sono rettangolari o circolari. Il nucleo è realizzato in lamiere di acciaio al silicio laminate a freddo di alta qualità. Per ridurre la rumorosità del nucleo, il disco del nucleo è fuso e incapsulato in un unico pezzo con resina ad alta resistenza. L'intercapedine d'aria tra i dischi del nucleo è composta da diversi piccoli segmenti, che possono ridurre le perdite del nucleo e la rumorosità. Il disco del nucleo è pressato in un unico pezzo da una vite a bassa carica magnetica e da un giogo in ferro. Per ridurre le vibrazioni del nucleo durante il funzionamento, vengono utilizzati materiali ammortizzanti tra il nucleo e la base del reattore per l'ammortizzazione.
La bobina è avvolta con filo di rame o alluminio avvolto con materiali isolanti di alta qualità. Per impedire la generazione di corrente circolante tra più fili durante il processo di avvolgimento, il filo è completamente trasposto. Dopo l'avvolgimento della bobina, la bobina viene fusa sotto vuoto con resina epossidica bicomponente per garantire che non vi siano intercapedini d'aria tra le spire e gli strati dell'avvolgimento, riducendo così la scarica parziale del prodotto.
Schema del reattore in serie con nucleo di ferro a secco
Schema di principio della struttura del reattore in serie con nucleo di ferro a secco
Metodo di cablaggio del reattore in serie con nucleo di ferro a secco
Caratteristiche del prodotto del reattore con nucleo di ferro a secco
1) Il reattore con nucleo di ferro a secco CKSC adotta una struttura a nucleo di ferro a secco, coesistenza trifase, il nucleo di ferro è realizzato in lamiere di acciaio al silicio di alta qualità, la colonna del nucleo di ferro è composta da più intercapedini d'aria distribuite uniformemente e l'intercapedine d'aria utilizza un pannello in fibra di vetro epossidica come riempitivo per garantire che l'intercapedine non si modifichi durante il funzionamento a lungo termine.
2) La struttura complessiva del reattore con nucleo di ferro a secco è semplice, di piccole dimensioni, leggera, dal layout ragionevole e facile da installare. È un'apparecchiatura di supporto ideale per telai di compensazione dei condensatori per interni e dispositivi in armadio, e non presenta inquinamento elettromagnetico, non presenta inquinamento da olio, ha un buon ritardo di fiamma, un flusso magnetico di dispersione inferiore e una bassa interferenza elettromagnetica con l'ambiente.
3) La bobina è di tipo a fusione epossidica e una rete in fibra di vetro epossidica è posata all'interno e all'esterno della bobina per il rinforzo. Il sistema di colata epossidica viene colato sotto vuoto, con eccellenti prestazioni di dissipazione del calore, buone prestazioni di isolamento, elevata resistenza meccanica, buona stabilità termica dinamica e assenza di crepe.
4) La bobina di colata epossidica non assorbe acqua, ha una bassa scarica parziale e può funzionare in sicurezza in condizioni ambientali difficili.
5) Lo spazio tra la colonna del nucleo e il tubo isolante è fissato con colla epossidica, mentre il giogo superiore in ferro e la bobina sono serrati con una vite di trazione per rendere il nucleo e la bobina integrati, il che rafforza la resistenza dell'isolamento tra il nucleo e la bobina e riduce notevolmente la rumorosità di funzionamento del reattore.
6) Speciali componenti isolanti sono installati tra la bobina e il nucleo e tra il nucleo e la terra per garantire la distanza di isolamento elettrico.
7) Il nucleo e l'avvolgimento del reattore non sono immersi in alcun liquido. Il metodo di raffreddamento è ad aria autoraffreddante, senza perdite d'olio, facile da produrre e manutenere e facile da usare. 8) Per la progettazione dell'ottimizzazione ausiliaria viene utilizzato un software specifico, il valore di induttanza è accurato e l'aumento di temperatura presenta un margine ragionevole.
Reattore filtro armonico in serie ad alta tensione con nucleo in ferro a secco
1. L'altitudine non supera i 1000 metri.
2. Temperatura ambiente di esercizio -25 °C – +45 °C, umidità relativa non superiore al 90%
3. Non sono presenti gas nocivi, materiali infiammabili o esplosivi.
4. L'ambiente circostante deve avere buone condizioni di ventilazione. L'altitudine non supera i 1000 metri.
Reattore filtro armonico in serie ad alta tensione con nucleo in ferro a secco
Tensione nominale del sistema
Tensione nominale del banco di condensatori.
Capacità nominale del reattore.
Corrente nominale del reattore.
Rapporto di reattanza nominale.
Reattore filtro armonico in serie ad alta tensione con nucleo in ferro a secco.


|
Capacità nominale (KVAR) |
Tipo |
Tensione nominale Linea (KV) |
Tensione terminale (V) |
Corrente terminale (A) |
Tasso di reattanza (%) |
Perdita (W) |
Capacità del condensatore (KVAR) |
Peso (kg) |
|
12 |
CKSC-12/10-6 |
11 |
381 |
10.5 |
6 |
720 |
200 |
180 |
|
24 |
CKSC-24/10-6 |
11 |
381 |
21 |
6 |
750 |
400 |
290 |
|
36 |
CKSC-36/6-6 |
6.6 |
228 |
52.6 |
6 |
1050 |
600 |
350 |
|
36 |
CKSC-36/10-6 |
11 |
381 |
31.5 |
6 |
1050 |
600 |
350 |
|
60 |
CKSC-60/6-6 |
6.6 |
228 |
87.7 |
6 |
1650 |
1000 |
450 |
|
60 |
CKSC-60/10-6 |
11 |
381 |
52.5 |
6 |
1650 |
1000 |
450 |
|
90 |
CKSC-90/6-6 |
6.6 |
228 |
131 |
6 |
1800 |
1500 |
650 |
|
90 |
CKSC-90/10-6 |
11 |
381 |
78.7 |
6 |
1800 |
1500 |
650 |
|
108 |
CKSC-108/6-6 |
6.6 |
228 |
157.5 |
6 |
2350 |
1800 |
700 |
|
108 |
CKSC-108/10-6 |
11 |
381 |
94.5 |
6 |
2350 |
1800 |
700 |
|
120 |
CKSC-120/6-6 |
6.6 |
228 |
175 |
6 |
2750 |
2000 |
780 |
|
120 |
CKSC-120/10-6 |
11 |
381 |
105 |
6 |
2750 |
2000 |
780 |
|
150 |
CKSC-150/6-6 |
6.6 |
228 |
219 |
6 |
2860 |
2500 |
1050 |
|
150 |
CKSC-150/10-6 |
11 |
381 |
131.2 |
6 |
2860 |
2500 |
1050 |
|
180 |
CKSC180/6-6 |
6.6 |
228 |
263 |
6 |
2950 |
3000 |
1250 |
|
180 |
CKSC-180/10-6 |
11 |
381 |
157.5 |
6 |
2950 |
3000 |
1250 |
|
240 |
CKSC-240/6-6 |
6.6 |
228 |
351 |
6 |
3450 |
4000 |
1450 |
|
240 |
CKSC-240/10-6 |
11 |
381 |
210 |
6 |
3450 |
4000 |
1450 |
|
300 |
CKSC-300/10-6 |
11 |
381 |
262.5 |
6 |
4260 |
5000 |
1650 |
|
360 |
CKSC-360/10-6 |
11 |
381 |
315 |
6 |
4850 |
6000 |
2200 |
|
450 |
CKSC-450/10-6 |
11 |
381 |
394 |
6 |
5430 |
7000 |
2400 |
|
600 |
CKSC-600/10-6 |
11 |
381 |
525 |
6 |
5840 |
10000 |
3200 |