Tensione nominale: 10 kV/20 kV/35 kV
Potenza nominale: 630 kVA-5000 kVA
Scenari applicativi: adatta per la costruzione e la trasformazione di reti elettriche urbane e rurali.
Certificazioni e standard: CE • CB IEC EN ISO 9001 • 14001 • 45001.
Panoramica
Sottostazione prefabbricata: le sottostazioni a cassone, note anche come sottostazioni prefabbricate, forniscono energia direttamente agli utenti. Si tratta di apparecchiature di distribuzione di energia compatte, prefabbricate, per interni ed esterni, che integrano quadri elettrici ad alta tensione (sala alta tensione), trasformatori di distribuzione (sala trasformatori) e dispositivi di distribuzione di energia a bassa tensione (sala bassa tensione) secondo uno schema di cablaggio specifico. Le funzioni di riduzione della tensione e distribuzione di energia a bassa tensione sono combinate organicamente e la sottostazione è installata in una struttura mobile in acciaio, completamente chiusa, resistente all'umidità, alla polvere e al fuoco, particolarmente adatta per la costruzione e la ricostruzione di reti elettriche urbane e rurali.
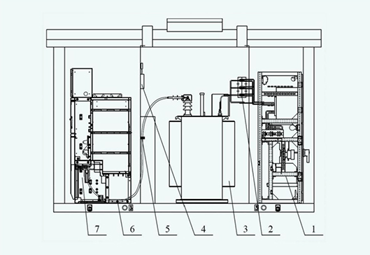
La cabina ad alta tensione è il lato di alimentazione, generalmente con linee in ingresso da 35 kV, 20 kV o 10 kV, e comprende sbarre di alta tensione, interruttori o fusibili, trasformatori di tensione, scaricatori, ecc. Il trasformatore si trova nella cabina e costituisce l'apparecchiatura principale della sottostazione a cassone. La cabina del trasformatore comprende i trasformatori, che costituiscono l'apparecchiatura principale della sottostazione. La cabina a bassa tensione comprende sbarre di bassa tensione, interruttori di bassa tensione, dispositivi di misura, ecc. Le linee escono dalle sbarre di bassa tensione per fornire energia alle utenze.
Le sottostazioni prefabbricate sono suddivise in tipo "triangolare" e "rettangolare" in base alla disposizione della struttura; Sottostazioni a cassone "tipo terminale" e sottostazioni a cassone "rete ad anello" in base alla modalità di alimentazione ad alta tensione. Entrambi i lati del fondo della cabina sono dotati di dispositivi di sollevamento push-pull, che ne facilitano il sollevamento, il trasporto e l'installazione. La sala alta e bassa tensione può adottare una struttura standard o una struttura con telaio o schermo. La prima struttura è altamente completa, mentre la seconda ha dimensioni complessive compatte.
Norme di implementazione
GB 1094. 1-2013: Trasformatori di potenza Parte 1: Generalità.
GB 1094. 2-2013: Trasformatori di potenza Parte 2: Sovratemperatura GB 1094. 3-2003: Trasformatori di potenza - Parte 3: Livelli di isolamento, prove di isolamento e intercapedini per l'isolamento esterno.
GB 3906-2006: 3. 6kV-40. Apparecchiature di manovra e controllo incapsulate in metallo da 5 kV CA GB/T 11022-2011: Condizioni tecniche comuni per apparecchiature di manovra e controllo ad alta tensione.
GB 7251.1-2013: Gruppi e controlli di bassa tensione Parte 1: Generalità GB 14048.1-2006: Apparecchiature di manovra e controllo di bassa tensione Parte 1: Generalità GB/T17467-2010: Sottostazioni prefabbricate AT/BT.
Caratteristiche
+ Dimensioni ridotte, ingombro ridotto, spostabili in qualsiasi momento in base alle esigenze e trasporto e installazione agevoli;
+ Distribuzione strutturale razionale, possibilità di configurazione a "triangolo" e "rettangolare" in base alle esigenze;
+ Ogni locale funzionale è indipendente dall'altro e la manutenzione e la sostituzione dei componenti sono comode e rapide;
+ L'involucro è ventilato naturalmente, il che può ridurre il calore durante il funzionamento;
+ Può essere utilizzato in vari ambienti con un elevato livello di protezione.
Condizioni ambientali
a Altitudine inferiore a 4000 m;
b Temperatura ambiente -45℃~+45℃;
c Umidità relativa: l'umidità media giornaliera non è superiore al 95% e la media mensile non è superiore al 90%.
Nota: se non rientra nelle condizioni sopra indicate, è necessario concordare con il produttore.
Schema unifilare atipico
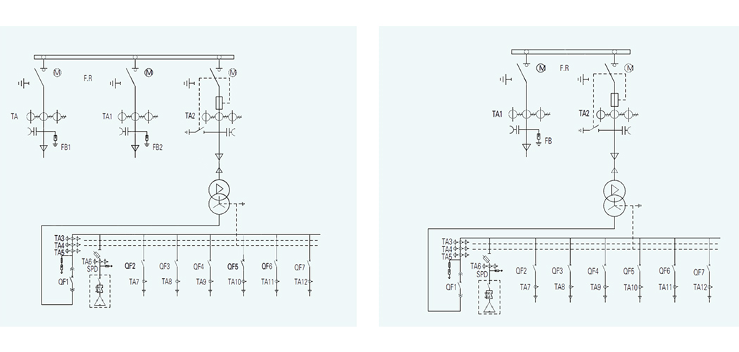
Schema unifilare primario di una sottostazione di rete ad anello. Schema unifilare primario di una sottostazione di tipo terminale.
Schema unifilare atipico
Disegno dei confini del quadro: (prendere come esempio 630 kVA)
Disegno dei confini del quadro (prendere come esempio 630 kVA)
Disegno dei confini del quadro
1. Quadro elettrico di bassa tensione
2. Telaio isolato per sbarre
3. Trasformatore
4. Involucro del trasformatore di tipo scatolato
5. Morsetto per cavi
6. Cavo ad alta tensione da 10 kV
7. Quadro elettrico di alta tensione


